10 FARMINGTON DRIVE, Brampton (Brampton East), Ontario, L6W2V2
MLS: W12919046 | House (Freehold)
$999,999



















































Property Description
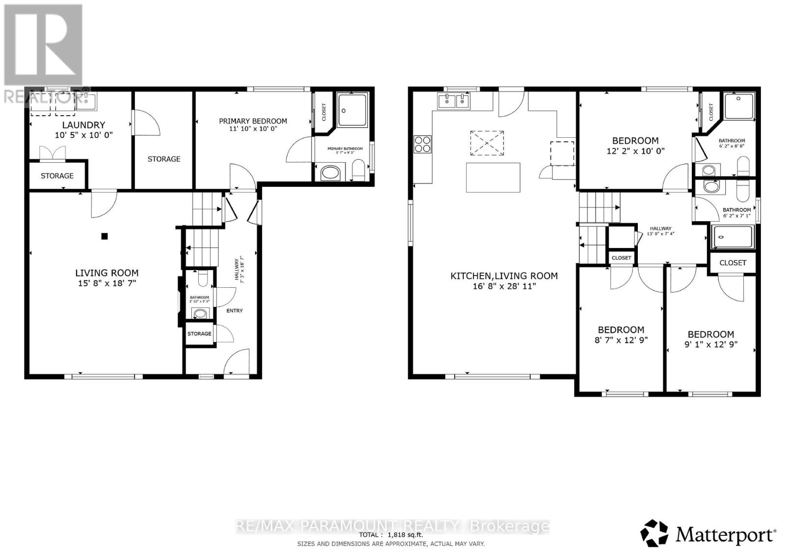
A True Showstopper! Extensively renovated with premium luxury finishes, This stunning 4-Level Side-Split Detached home is situated on 50 x110 Ft lot (Total 1800+ SF Incl.BSMT) offering exceptional space, comfort & modern living Inside & Out.Nestled in a quiet, highly desirable family-friendly neighborhood of Peel Village.Step inside to experience thoughtful design and quality craftsmanship throughout.The ground level welcomes you with a spacious bedroom featuring a private ensuite bathroom, along with a separate powder room-perfect for guests, in-laws, or multi-generational living.The open-concept main floor showcases a sun-filled living room highlighted by a huge picture window, creating a warm and inviting atmosphere.The beautifully upgraded eat-in kitchen features with brand-new stainless steel appliances, under-mount lighting, modern cabinetry, sky light and premium finishes, with a seamless walk-out to a large deck.The upper level offers three generously sized bedrooms and two fully renovated bathrooms, including a relaxing primary bedroom with a private 4-piece ensuite.Fully finished basement provides a huge recreational area, along with a dedicated laundry room, storage, and excellent future potential.Finished 1 Car Garage with epoxy flooring & screen doors.Driveway W/Total 5 Parking Spaces. Outside, enjoy Backyards Oasis with professionally designed two decks(one with glass railings), Storage Shed, complemented by a well maintained front and backyard with beautiful landscaping and In-Ground Sprinkler System for your convenance, Backyard & Soffit Potlights,adding incredible curb appeal day & night. Minutes away from to schools, parks, transit,GO Station&highways, convenience truly meets lifestyle here.Don't Miss This Rare Opportunity-Fall In Love The Moment You Walk In.*EXTRAS* Kitchen, Bathrooms,BSMT & Laundry Room Upgrades,All Appliances, Washer & Dryer, All New Windows By Anderson, Custom Hunter Douglas Blinds-All in 2022. Open House- Sunday - 2 pm to 4 pm (id:64974)
Quick Facts
- Property Type: House (Freehold)
- Bedrooms: 4 (4 above)
- Bathrooms: 4 (1 half)
- Ownership: Freehold
- Attached: No
- Fireplaces: Yes
- Parking: 5.0 spaces (Attached Garage, Garage)
- Frontage: 50 ft (15.2 m)
Costs
- Annual Taxes: $6,387.00
Listing Provided by: RE/MAX PARAMOUNT REALTY
Board: Toronto Regional Real Estate Board
Data provided via CREA DDF®.
Detailed Features
Interior & Systems
- Heating: Forced air, Natural gas
- Cooling: Central air conditioning
- Basement: Finished, N/A
- Appliances: Washer, Refrigerator, Dishwasher, Stove, Dryer, Storage Shed, Window Coverings, Water Heater
- Flooring: Tile, Hardwood
Exterior & Construction
- Exterior: Stone, Stucco
- Foundation: Poured Concrete
- Sewer: Sanitary sewer
- Water: Municipal water
Lot & Land
- Frontage: 50 ft (15.2 m)
- Features: Carpet Free, Sump Pump
Community & Neighbourhood
- Neighbourhood: Brampton East
Room Details (11 rooms)
Listing Information
Listing History
Buy/Sell/Terminated/Expired listing history for 10 FARMINGTON DRIVE, Brampton (Brampton East), Ontario, L6W2V2
Location & Neighborhood
🚗 Travel times
Neighborhood Walkability
Mortgage & Cost Calculators
Nearby Homes (Within 2km)
Similar Homes
Similar Properties
No rental comparables found in this area.
Sold Comparables
Access to sold property data requires a registered and verified account with TRREB DDF integration.
Coming SoonRented Comparables
Access to rented property data requires a registered and verified account with TRREB DDF integration.
Coming Soon
























