1 WEST AVENUE, Hamilton (Winona), Ontario, L8E5L5
MLS: X12825616 | House (Freehold)
$1,398,000













































Property Description
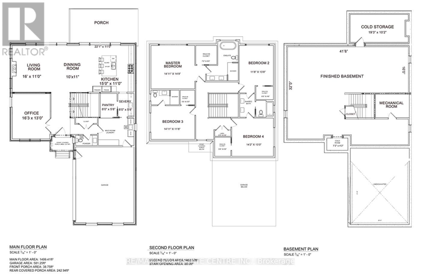
Welcome to a stunning modern 4,500 sq. ft. masterpiece where luxury and craftsmanship unite seamlessly. This custom two-story home epitomizes contemporary sophistication, offering an unparalleled living experience defined by soaring 10-foot ceilings on the main level and 9-foot ceilings upstairs. At the heart of the home is a sleek, designer kitchen featuring custom cabinetry with pull-out drawers, a dedicated servery, and an oversized walk-in pantry-a perfect blank canvas awaiting your personal choice of premium appliances. Adjacent is the expansive, open-concept living area highlighted by a striking coffered ceiling, an elegant electric fireplace, and breathtaking windows that bathe the space in natural light. The main level also features a private office behind grand 8-foot doors, offering a quiet retreat or ideal workspace. The finished basement, complete with a 2-piece bathroom and 9-foot ceilings, adds versatile space for recreation or fitness. Upstairs, the primary suite serves as a serene escape with a spacious walk-in closet and a spa-inspired 5-piece ensuite. A second bedroom features a private 3-piece ensuite, while two additional bedrooms share a well-appointed 5-piece bathroom. Step outside to a private backyard oasis with a covered patio, BBQ gas hookup, and lush landscaping. Additional high-end features include an oak staircase with iron spindles, a hardwired security system, and Wi-Fi access points on each floor. Located in a sought-after neighborhood just minutes from the QEW, a future GO station, and top-rated schools, this exceptional home offers the perfect blend of luxury and location. (id:64974)
Quick Facts
- Property Type: House (Freehold)
- Bedrooms: 4 (4 above)
- Bathrooms: 5 (2 half)
- Ownership: Freehold
- Attached: No
- Fireplaces: 1
- Parking: 6 spaces (Attached Garage, Garage)
- Frontage: 70 ft (21.3 m)
Listing Provided by: RE/MAX REAL ESTATE CENTRE INC.
Board: Toronto Regional Real Estate Board
Data provided via CREA DDF®.
Detailed Features
Interior & Systems
- Heating: Forced air, Natural gas
- Cooling: Central air conditioning
- Basement: Finished, Full
- Appliances: Central Vacuum
- Security: Security system
Exterior & Construction
- Exterior: Stone, Stucco
- Foundation: Concrete
- Sewer: Sanitary sewer
- Water: Municipal water
Lot & Land
- Frontage: 70 ft (21.3 m)
- Features: Carpet Free, Sump Pump
- Zoning: R2
Community & Neighbourhood
- Community: School Bus, Community Centre
- Building: Fireplace(s)
- Neighbourhood: Winona
Room Details (15 rooms)
Listing Information
Listing History
Buy/Sell/Terminated/Expired listing history for 1 WEST AVENUE, Hamilton (Winona), Ontario, L8E5L5
Location & Neighborhood
🚗 Travel times
Neighborhood Walkability
Mortgage & Cost Calculators
Nearby Homes (Within 2km)
Similar Homes
Similar Properties
No rental comparables found in this area.
Sold Comparables
Access to sold property data requires a registered and verified account with TRREB DDF integration.
Coming SoonRented Comparables
Access to rented property data requires a registered and verified account with TRREB DDF integration.
Coming Soon
























