1 - 75 KEELE STREET, Toronto (High Park North), Ontario, M6P2J8
MLS: W12754032 | Triplex
$2,500.00 / monthly
















Property Description
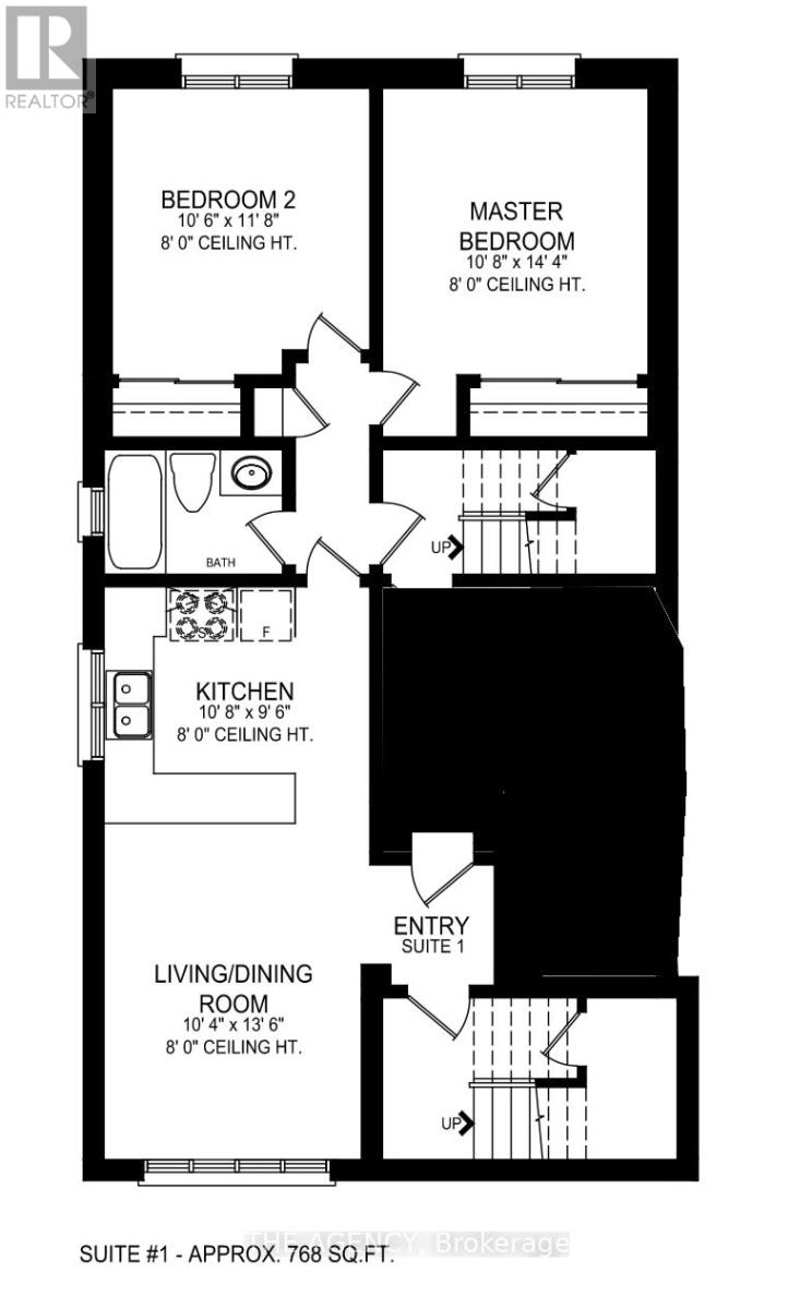
Welcome to High Park living at its best. This bright and spacious 2-bedroom suite is located in a charming detached triplex in one of Toronto's most desirable neighbourhoods. Just steps from Keele subway station and a short walk to the boutiques, cafés, and everyday amenities of Bloor West Village, this unit offers the perfect blend of city convenience and neighbourhood charm.Quiet, sun-filled, and well laid out, the suite also features access to both a front and backyard, providing a rare suburban feel in the heart of the city. A warm, inviting space that's easy to settle into and feel at home. Some photos have been virtually staged to showcase the unit's potential. (id:64974)
Quick Facts
- Property Type: Triplex
- Bedrooms: 2 (2 above)
- Bathrooms: 1
- Attached: Yes
Listing Provided by: THE AGENCY
Board: Toronto Regional Real Estate Board
Data provided via CREA DDF®.
Detailed Features
Interior & Systems
- Heating: Radiant heat, Natural gas
- Cooling: None
- Basement: None
- Appliances: Water Heater
- Flooring: Ceramic
- Utilities: Sewer, Electricity
Exterior & Construction
- Exterior: Brick
- Foundation: Brick
- Fencing: Fenced yard
- Sewer: Sanitary sewer
- Water: Municipal water
Lot & Land
- View: View
Community & Neighbourhood
- Building: Separate Electricity Meters, Separate Heating Controls
- Neighbourhood: High Park North
Room Details (5 rooms)
Listing Information
Listing History
Buy/Sell/Terminated/Expired listing history for 1 - 75 KEELE STREET, Toronto (High Park North), Ontario, M6P2J8
Location & Neighborhood
🚗 Travel times
Neighborhood Walkability
Mortgage & Cost Calculators
Nearby Homes (Within 2km)
Similar Homes
Similar Properties
Sold Comparables
Access to sold property data requires a registered and verified account with TRREB DDF integration.
Coming SoonRented Comparables
Access to rented property data requires a registered and verified account with TRREB DDF integration.
Coming Soon


































