1 - 525 MILNER AVENUE, Toronto (Malvern), Ontario, M1B2K4
MLS: E12959240 | Industrial
$1,999,000








Property Description
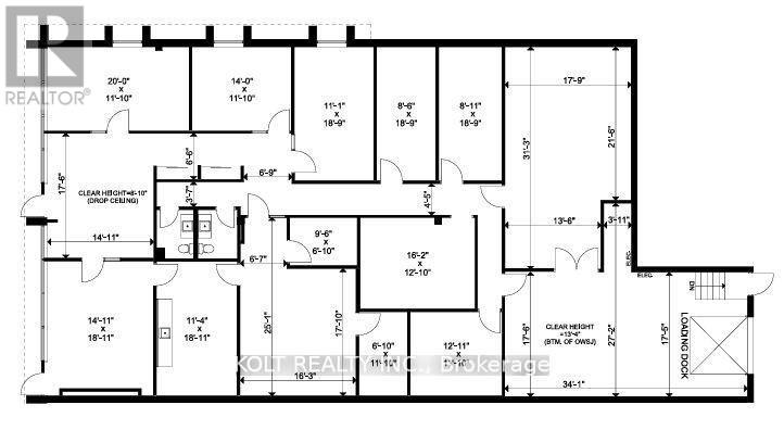
Rare corner unit in well maintained complex with with immediate access to HWY 401. Ample parking. Approximately 87% professional finished offices with 2 washrooms and kitchenette. Floor plan available. 100%a/c. TTC at door. Lots of room for shipping, 53 ft trailer access to be confirmed by Purchaser. Food or retail uses to obtain written consent of the board. Measurements and permitted uses to be confirmed by purchaser. (id:64974)
Quick Facts
- Property Type: Industrial
- Bedrooms: None
- Bathrooms: None
- Living Area: 4,538 sq ft (421.6 m²)
Costs
- Annual Taxes: $13,268.31
Listing Provided by: KOLT REALTY INC.
Board: Toronto Regional Real Estate Board
Data provided via CREA DDF®.
Detailed Features
Interior & Systems
- Heating: Forced air, Natural gas
- Cooling: Partially air conditioned, Fully air conditioned
Exterior & Construction
- Water: Municipal water
Lot & Land
- Zoning: E 0.6
Community & Neighbourhood
- Neighbourhood: Malvern
Listing Information
Listing History
MLS listing activity for 1 - 525 MILNER AVENUE, Toronto (Malvern), Ontario, M1B2K4 — dates reflect when changes were recorded in the DDF
🚗 Travel times
Neighborhood Walkability
Mortgage & Cost Calculators
Nearby Homes ?Nearby Homes — Search CriteriaSearch Radius1 kmPrice Range±5%Match BedroomsYesMatch BathroomsYes
Similar Homes ?Similar Homes — Search CriteriaSearch Radius5 kmPrice Range±5%Match Home TypeYesMatch BedroomsYes

2754 BROOKFIELD ROAD, Port Colborne (Bethel)
Industrial$1,999,000
$29,625/yr taxListing Courtesy of KELLER WILLIAMS COMPLETE REALTY

1065 MAIN STREET W STREET, North Bay (West End)
Industrial$1,999,000
$16,478/yr taxListing Courtesy of RE/MAX GARDEN CITY REALTY INC, BROKERAGE

328 TRINITY CHURCH Road, Glanbrook
Industrial$1,999,900
$18,892/yr taxListing Courtesy of Royal LePage State Realty Inc.

22 GORDON, Essex
House$1,999,900
Listing Courtesy of DEERBROOK REALTY INC.

1847 ROGERS ROAD, Perth
Industrial$2,000,000
$11,186/yr taxListing Courtesy of RE/MAX HALLMARK REALTY GROUP

14 GREENGAGE ROAD, Clearview (New Lowell)
Industrial$1,996,000
$2,965/yr taxListing Courtesy of RIGHT AT HOME REALTY INVESTMENTS GROUP

V/L KAMLOOPS, Windsor
Industrial$1,950,900
Listing Courtesy of ROYAL LEPAGE BINDER REAL ESTATE

31 THAMES STREET S, Ingersoll (Ingersoll - South)
Industrial$1,949,000
Listing Courtesy of HOMELIFE/MIRACLE REALTY LTD

501-541 ERIE ST E + 1014-1018 HOWARD, Windsor
Industrial$2,079,000
Listing Courtesy of REGENCY REALTY LIMITED BROKERAGE

30 - 330 ESNA PARK DRIVE, Markham (Milliken Mills West)
Warehouse$2,079,000
$2/yr taxListing Courtesy of KOLT REALTY INC.

3323 SUPERIOR Court Unit# C103, Oakville
Condo$2,096,640
$6,436/yr taxListing Courtesy of Colliers Macaulay Nicolls Inc.

3&4 - 520 WESTNEY ROAD S, Ajax (South West)
Industrial$1,899,240
$17,884/yr taxListing Courtesy of RE/MAX HALLMARK FIRST GROUP REALTY LTD.
Similar Properties ?Active Comparables — Search CriteriaSearch Radius2 kmPrice Range±5%Match Home TypeYesMatch BedroomsYes
No active comparables found in this area.
No rental comparables found in this area.
Sold Comparables
Access to sold property data requires a registered and verified account with TRREB DDF integration.
Coming SoonRented Comparables
Access to rented property data requires a registered and verified account with TRREB DDF integration.
Coming SoonBook a Viewing
1 - 525 MILNER AVENUE, Toronto (Malvern), Ontario, M1B2K4

