1 - 525 MILNER AVENUE, Toronto (Malvern), Ontario, M1B2K4
MLS: E12418357 | Industrial
$2,089,000









Property Description
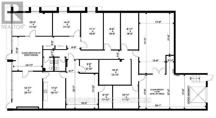
Rare corner unit in well maintained complex with with immediate access to HWY 401. Ample parking. Approximately 87% professional finished offices with 2 washrooms and kitchenette. Floor plan available. 100%a/c. TTC at door. Lots of room for shipping, 53 ft trailer access to be confirmed by Purchaser. Food or retail uses to obtain written consent of the board. Measurements and permitted uses to be confirmed by purchaser. (id:64974)
Quick Facts
- Property Type: Industrial
- Bedrooms: None
- Bathrooms: None
- Living Area: 4,538 sq ft (421.6 m²)
Costs
- Annual Taxes: $13,268.31 (2024)
Listing Provided by: KOLT REALTY INC.
Board: Toronto Regional Real Estate Board
Data provided via CREA DDF®.
Detailed Features
Interior & Systems
- Heating: Forced air, Natural gas
- Cooling: Fully air conditioned
Exterior & Construction
- Water: Municipal water
Lot & Land
- Zoning: E 0.6
Community & Neighbourhood
- Neighbourhood: Malvern
Listing Information
Listing History
Buy/Sell/Terminated/Expired listing history for 1 - 525 MILNER AVENUE, Toronto (Malvern), Ontario, M1B2K4
Location & Neighborhood
🚗 Travel times
Neighborhood Walkability
Mortgage & Cost Calculators
Nearby Homes (Within 2km)
Similar Homes
Similar Properties
No rental comparables found in this area.
Sold Comparables
Access to sold property data requires a registered and verified account with TRREB DDF integration.
Coming SoonRented Comparables
Access to rented property data requires a registered and verified account with TRREB DDF integration.
Coming Soon

































