1 - 230 MEADOWBROOK DRIVE, Hamilton (Ancaster), Ontario, L9G4V2
MLS: X12924114 | Townhouse (Condo)
$649,900

















































Property Description
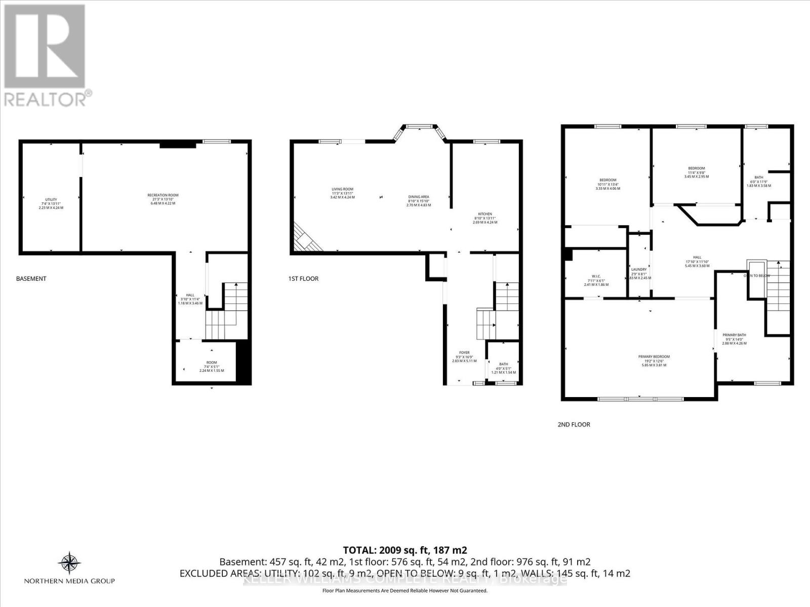
End-unit townhouse condo in a family-friendly Ancaster neighbourhood where convenience really stands out. With over 2,000 square feet of finished living space, this is one of the larger layouts in the complex, with extra windows, more natural light, and a bit more space than your typical interior unit. The main floor offers a bright, comfortable living and dining area with a fireplace, bay windows, and a walkout to a backyard surrounded by mature trees-great for kids, pets, or just having some quiet outdoor space. The layout works well as-is, with the option to update over time if you want to put your own touch on it. Upstairs you've got three good-sized bedrooms, including a primary with a walk-in closet and a full ensuite with a jetted tub and separate shower, plus a second full bathroom and the added bonus of upstairs laundry. The finished basement gives you that extra space everyone ends up needing-rec room, playroom, home office, or a bit of everything-along with storage and a large utility area. Attached 2-car garage plus a double driveway gives you parking for four. Brand new furnace (2025), A/C (2021), and hot water tank are all owned. Well maintained, clean, and vacant, so it's an easy move for the next owner. Location-wise, it's hard to beat-park across the street, schools nearby, quick access to the 403, and all the shopping and everyday stuff along Wilson just a couple minutes away. Don't sleep on this one! (id:64974)
Quick Facts
- Property Type: Townhouse (Condo)
- Bedrooms: 3 (3 above)
- Bathrooms: 3 (1 half)
- Ownership: Condo/Strata
- Attached: Yes
- Fireplaces: 1
- Parking: 4.0 spaces (Attached Garage, Garage)
Costs
- Annual Taxes: $4,208.04 (2026)
- Condo/HOA Fee: $689.01 / monthly
- Corp: Reed Condo Management
- Includes: Common Area Maintenance, Water, Parking
Listing Provided by: KELLER WILLIAMS COMPLETE REALTY
Board: Toronto Regional Real Estate Board
Data provided via CREA DDF®.
Detailed Features
Interior & Systems
- Heating: Forced air, Natural gas
- Cooling: Central air conditioning
- Basement: Finished, Full
- Appliances: Washer, Refrigerator, Dishwasher, Stove, Dryer, Microwave, Window Coverings, Garage door opener remote(s), Water Heater
Exterior & Construction
- Exterior: Brick, Vinyl siding
Lot & Land
- Features: In suite Laundry, Sump Pump
Community & Neighbourhood
- Community: School Bus, Pets Allowed With Restrictions
- Building: Fireplace(s), Visitor Parking
- Neighbourhood: Ancaster
Listing Information
Listing History
MLS listing activity for 1 - 230 MEADOWBROOK DRIVE, Hamilton (Ancaster), Ontario, L9G4V2 — dates reflect when changes were recorded in the DDF
🚗 Travel times
Neighborhood Walkability
Mortgage & Cost Calculators
Nearby Homes ?Nearby Homes — Search CriteriaSearch Radius1 kmPrice Range±5%Match BedroomsYesMatch BathroomsYes

230 MEADOWBROOK Drive Unit# 8, Ancaster
Condo - Row / Townhouse$649,900
$4,400/yr taxListing Courtesy of Royal LePage State Realty Inc.

230 MEADOWBROOK Drive Unit# 1, Ancaster
Condo - Row / Townhouse$649,900
$4,208/yr taxListing Courtesy of Keller Williams Complete Realty

105 WILSON Street W Unit# 20, Ancaster
Condo - Row / Townhouse$669,900
$4,014/yr taxListing Courtesy of Royal LePage Burloak Real Estate Services

5 LIDDYCOAT LANE, Hamilton (Ancaster)
Condo - Row / Townhouse$668,900
$4,569/yr taxListing Courtesy of REAL BROKER ONTARIO LTD.

91 ABBEY Close, Ancaster
House$1,329,000
$7,564/yr taxListing Courtesy of Re/Max Twin City Realty Inc

405 VALRIDGE Drive, Ancaster
House$1,549,900
$9,549/yr taxListing Courtesy of RE/MAX Escarpment Realty Inc.

456 VALRIDGE Drive, Ancaster
House$4,500/mo
Listing Courtesy of RIGHT AT HOME REALTY BROKERAGE

405 VALRIDGE DRIVE, Hamilton (Ancaster)
House$1,549,900
$9,549/yr taxListing Courtesy of RE/MAX ESCARPMENT REALTY INC.

91 ABBEY CLOSE, Hamilton (Ancaster)
House$1,329,000
$7,564/yr taxListing Courtesy of RE/MAX TWIN CITY REALTY INC.

456 VALRIDGE DRIVE, Hamilton (Ancaster)
House$1,549,000
$9,470/yr taxListing Courtesy of RIGHT AT HOME REALTY

456 VALRIDGE DRIVE, Hamilton (Ancaster)
House$4,500/mo
Listing Courtesy of RIGHT AT HOME REALTY

19 GALLEY Road, Ancaster
House$1,299,900
$7,764/yr taxListing Courtesy of Chase Realty Inc.

483 VALRIDGE DRIVE, Hamilton (Ancaster)
House$1,729,900
$9,491/yr taxListing Courtesy of ROYAL LEPAGE STATE REALTY

483 VALRIDGE Drive, Ancaster
House$1,729,900
$10,157/yr taxListing Courtesy of Royal LePage State Realty Inc.

309 AMBERLY BOULEVARD, Hamilton (Ancaster)
House$1,249,000
$7,409/yr taxListing Courtesy of RIGHT AT HOME REALTY
Similar Homes ?Similar Homes — Search CriteriaSearch Radius5 kmPrice Range±5%Match Home TypeYesMatch BedroomsYes

10 LIDDYCOAT Lane Unit# 4, Hamilton
Condo - Row / Townhouse$649,900
$4,177/yr taxListing Courtesy of RE/MAX ESCARPMENT REALTY INC

4 - 10 LIDDYCOAT LANE, Hamilton (Ancaster)
Condo - Row / Townhouse$649,900
$4,177/yr taxListing Courtesy of RE/MAX ESCARPMENT REALTY INC.

230 MEADOWBROOK Drive Unit# 1, Ancaster
Condo - Row / Townhouse$649,900
$4,208/yr taxListing Courtesy of Keller Williams Complete Realty

810 GOLF LINKS Road Unit# 2, Ancaster
Condo - Row / Townhouse$649,900
$4,846/yr taxListing Courtesy of RE/MAX Escarpment Realty Inc.

230 MEADOWBROOK Drive Unit# 8, Ancaster
Condo - Row / Townhouse$649,900
$4,400/yr taxListing Courtesy of Royal LePage State Realty Inc.

13 EMICK DRIVE, Hamilton (Meadowlands)
Row / Townhouse$664,900
$4,549/yr taxListing Courtesy of ONE PERCENT REALTY LTD.

5 LIDDYCOAT LANE, Hamilton (Ancaster)
Condo - Row / Townhouse$668,900
$4,569/yr taxListing Courtesy of REAL BROKER ONTARIO LTD.

4 ANDRUSS Lane, Ancaster
Row / Townhouse$629,950
$4,868/yr taxListing Courtesy of RE/MAX Escarpment Realty Inc.

105 WILSON Street W Unit# 20, Ancaster
Condo - Row / Townhouse$669,900
$4,014/yr taxListing Courtesy of Royal LePage Burloak Real Estate Services

29 WILINGS Lane, Ancaster
Condo - Row / Townhouse$624,900
$4,479/yr taxListing Courtesy of Coldwell Banker Community Professionals

29 WILINGS LANE, Hamilton (Ancaster)
Condo - Row / Townhouse$624,900
$4,479/yr taxListing Courtesy of COLDWELL BANKER COMMUNITY PROFESSIONALS
Similar Properties ?Active Comparables — Search CriteriaSearch Radius2 kmPrice Range±5%Match Home TypeYesMatch BedroomsYes

10 LIDDYCOAT Lane Unit# 4, Hamilton
Condo - Row / Townhouse$649,900
$4,177/yr taxListing Courtesy of RE/MAX ESCARPMENT REALTY INC

4 - 10 LIDDYCOAT LANE, Hamilton (Ancaster)
Condo - Row / Townhouse$649,900
$4,177/yr taxListing Courtesy of RE/MAX ESCARPMENT REALTY INC.

230 MEADOWBROOK Drive Unit# 8, Ancaster
Condo - Row / Townhouse$649,900
$4,400/yr taxListing Courtesy of Royal LePage State Realty Inc.

230 MEADOWBROOK Drive Unit# 1, Ancaster
Condo - Row / Townhouse$649,900
$4,208/yr taxListing Courtesy of Keller Williams Complete Realty

5 LIDDYCOAT LANE, Hamilton (Ancaster)
Condo - Row / Townhouse$668,900
$4,569/yr taxListing Courtesy of REAL BROKER ONTARIO LTD.

105 WILSON Street W Unit# 20, Ancaster
Condo - Row / Townhouse$669,900
$4,014/yr taxListing Courtesy of Royal LePage Burloak Real Estate Services

29 WILINGS LANE, Hamilton (Ancaster)
Condo - Row / Townhouse$624,900
$4,479/yr taxListing Courtesy of COLDWELL BANKER COMMUNITY PROFESSIONALS

29 WILINGS Lane, Ancaster
Condo - Row / Townhouse$624,900
$4,479/yr taxListing Courtesy of Coldwell Banker Community Professionals

305 GARNER Road W Unit# 57, Ancaster
Condo - Row / Townhouse$3,500/mo
Listing Courtesy of Right at Home Realty

23 KENDRICK COURT, Hamilton (Ancaster)
House$2,980/mo
Listing Courtesy of HOMELIFE LANDMARK REALTY INC.

67 - 305 GARNER ROAD W, Hamilton (Ancaster)
Row / Townhouse$2,950/mo
Listing Courtesy of Multidoor Realty
Sold Comparables
Access to sold property data requires a registered and verified account with TRREB DDF integration.
Coming SoonRented Comparables
Access to rented property data requires a registered and verified account with TRREB DDF integration.
Coming SoonBook a Viewing
1 - 230 MEADOWBROOK DRIVE, Hamilton (Ancaster), Ontario, L9G4V2
