1 - 22 ALMA STREET, Kincardine, Ontario, N0G2T0
MLS: X12029092 | House (Freehold)
$2,300,000








Property Description
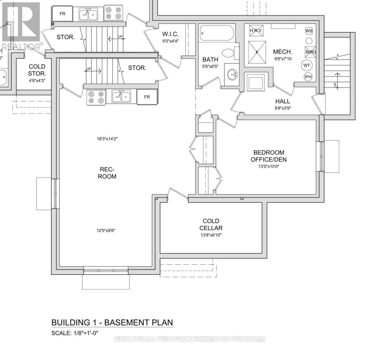
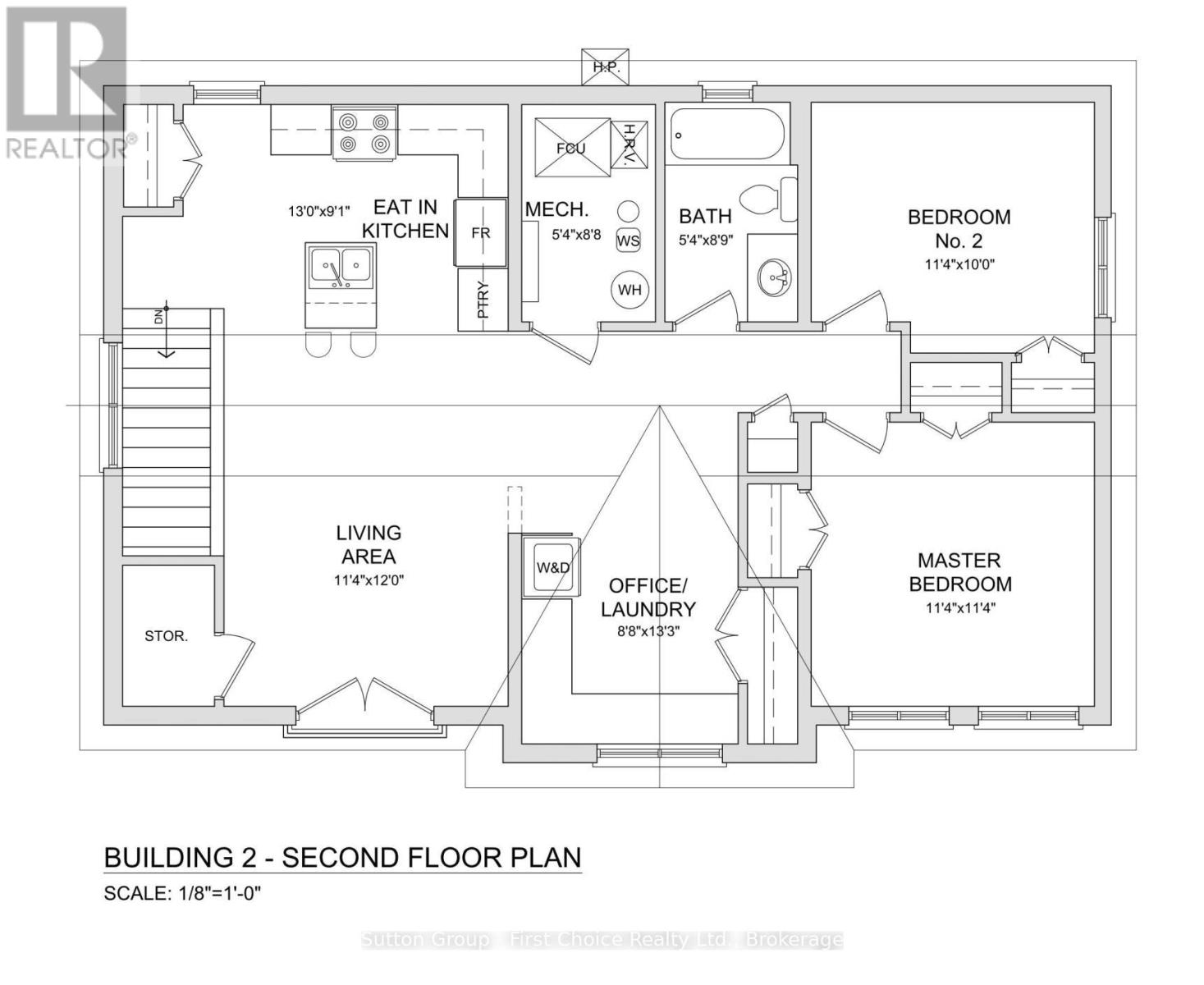
Proudly presenting Parkside Woods, 22 Alma Street lot 1. Located within a to-be built boutique subdivision development in Inverhuron, this property is incredibly located on the doorstep of Inverhuron Provincial Park and Bruce Power, providing exciting and diverse opportunities. Surrounded by nature and serenity this 1/2 acre lot will be home to an exciting, multi functioning, multi family, multi purpose, real estate opportunity. Consisting of between three and five independent suites under 2 roofs, this property is an incredible mixture of opportunity and enjoyment. (id:64974)
Quick Facts
- Property Type: House (Freehold)
- Style: Bungalow
- Bedrooms: 8 (6 above, 2 below)
- Bathrooms: 5
- Ownership: Freehold
- Attached: No
- Parking: 7 spaces (Detached Garage, Garage)
- Frontage: 40.5 m (133 ft)
Costs
- Annual Taxes: $1.00 (2025)
Listing Provided by: Sutton Group - First Choice Realty Ltd.
Board: OnePoint Association of REALTORS®
Data provided via CREA DDF®.
Detailed Features
Interior & Systems
- Heating: Forced air, Natural gas
- Cooling: Central air conditioning, Air exchanger
- Basement: Full, Walk-up
- Appliances: Water meter
Exterior & Construction
- Style: Bungalow
- Exterior: Aluminum siding, Vinyl siding
- Foundation: Poured Concrete
- Sewer: Sanitary sewer
- Water: Municipal water
Lot & Land
- Frontage: 40.5 m (133 ft)
- Features: Backs on greenbelt, Carpet Free, Guest Suite, In-Law Suite
- Zoning: R3
Community & Neighbourhood
- Neighbourhood: Kincardine
Listing Information
Listing History
Buy/Sell/Terminated/Expired listing history for 1 - 22 ALMA STREET, Kincardine, Ontario, N0G2T0
Location & Neighborhood
🚗 Travel times
Neighborhood Walkability
Mortgage & Cost Calculators
Nearby Homes (Within 2km)
Similar Homes
Similar Properties
No rental comparables found in this area.
Sold Comparables
Access to sold property data requires a registered and verified account with TRREB DDF integration.
Coming SoonRented Comparables
Access to rented property data requires a registered and verified account with TRREB DDF integration.
Coming Soon













