1 - 205 EXPORT BOULEVARD W, Mississauga (Gateway), Ontario, L5S1Z2
MLS: W12389936 | Offices
$2,900.00 / monthly




Property Description
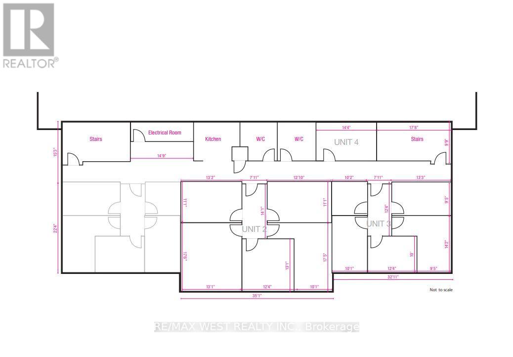
Bright updated office space with high ceilings. 2nd level walkup space with wide staircases. Ample parking. Common area consists of large reception and kitchen with 2 washrooms. Fibre optic and unit security available to the building. Offices are clean and in move in condition. Tenant cleans their own usable space and Landlord cleans common areas. (id:64974)
Quick Facts
- Property Type: Offices
- Bedrooms: None
- Bathrooms: 2
- Living Area: 1,430 sq ft (132.9 m²)
- Frontage: 33.0 m (108 ft)
Listing Provided by: RE/MAX WEST REALTY INC.
Board: Toronto Regional Real Estate Board
Data provided via CREA DDF®.
Detailed Features
Interior & Systems
- Heating: Forced air, Natural gas
- Cooling: Fully air conditioned
Exterior & Construction
- Water: Municipal water
Lot & Land
- Frontage: 33.0 m (108 ft)
- Zoning: E2
Community & Neighbourhood
- Neighbourhood: Gateway
Listing Information
Listing History
Buy/Sell/Terminated/Expired listing history for 1 - 205 EXPORT BOULEVARD W, Mississauga (Gateway), Ontario, L5S1Z2
Location & Neighborhood
🚗 Travel times
Neighborhood Walkability
Mortgage & Cost Calculators
Nearby Homes (Within 2km)
Similar Homes
Similar Properties
Sold Comparables
Access to sold property data requires a registered and verified account with TRREB DDF integration.
Coming SoonRented Comparables
Access to rented property data requires a registered and verified account with TRREB DDF integration.
Coming Soon
































