00 HARMONY ROAD, Oshawa (Pinecrest), Ontario, L1K2B3
MLS: E12930128 | Vacant Land
$2,400,000



Property Description
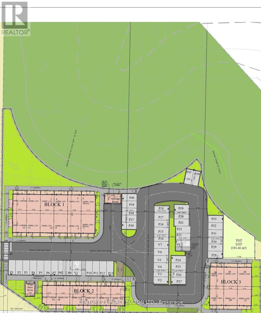
Enclaved community, Draft & Site Plan approved for Twenty Four Town Homes . Six row and eighteen back to back three story towns. Water and sewer connections at the property line. (id:64974)
Quick Facts
- Property Type: Vacant Land
- Bedrooms: None
- Bathrooms: 0
- Frontage: 264 ft (80.5 m)
Costs
- Annual Taxes: $10,300.00
Listing Provided by: CENTURY 21 PERCY FULTON LTD.
Board: Toronto Regional Real Estate Board
Data provided via CREA DDF®.
Detailed Features
Interior & Systems
- Utilities: Sewer, Electricity, Cable
Lot & Land
- Frontage: 264 ft (80.5 m)
- Features: Irregular lot size
- Zoning: R4-A
Community & Neighbourhood
- Neighbourhood: Pinecrest
Listing Information
Listing History
MLS listing activity for 00 HARMONY ROAD, Oshawa (Pinecrest), Ontario, L1K2B3 — dates reflect when changes were recorded in the DDF
🚗 Travel times
Neighborhood Walkability
Mortgage & Cost Calculators
Nearby Homes ?Nearby Homes — Search CriteriaSearch Radius1 kmPrice Range±5%Match BedroomsYesMatch BathroomsYes
Similar Homes ?Similar Homes — Search CriteriaSearch Radius5 kmPrice Range±5%Match Home TypeYesMatch BedroomsYes

00 HARMONY ROAD, Oshawa (Pinecrest)
Vacant Land$2,400,000
$10,300/yr taxListing Courtesy of CENTURY 21 PERCY FULTON LTD.

486356 30 SIDE ROAD, Mono
Vacant Land$2,400,000
$6,790/yr taxListing Courtesy of COLDWELL BANKER RONAN REALTY

592 TAUNTON ROAD E, Ajax (Northeast Ajax)
Vacant Land$2,399,900
$3,100/yr taxListing Courtesy of CENTURY 21 PEOPLE'S CHOICE REALTY INC.

PT LT 15 CONCESSION 11 WALPOLE Road, Hagersville
Vacant Land$2,350,000
$1,811/yr taxListing Courtesy of RE/MAX Escarpment Realty Inc.

4558 LAKESIDE Drive, Beamsville
Vacant Land$2,490,000
$1/yr taxListing Courtesy of Royal LePage State Realty Inc.

3237 COLLINGWOOD STREET, Clearview
Vacant Land$2,495,000
$1,090/yr taxListing Courtesy of Engel & Volkers Toronto Central

323 HORTON STREET E, London East (East K)
Vacant Land$2,495,000
$26,520/yr taxListing Courtesy of EXP REALTY

401345 GREY ROAD 4, West Grey
Vacant Land$2,499,000
$9,244/yr taxListing Courtesy of Century 21 Millennium Inc.

173 ST. CATHARINES STREET, West Lincoln (Smithville)
Vacant Land$2,499,000
$5,115/yr taxListing Courtesy of COLDWELL BANKER POWER REALTY

944 & 994 8 Highway, Stoney Creek
Vacant Land$2,500,000
$5,975/yr taxListing Courtesy of RE/MAX Escarpment Realty Inc.

4650 HWY 11/17, Oliver Paipoonge
Vacant Land$2,500,000
$33,287/yr taxListing Courtesy of RE/MAX ADVANTAGE REALTY LTD.

1118 PUCE ROAD, Lakeshore
Vacant Land$2,500,000
Listing Courtesy of CHRIS GIRARD REALTY LTD.

1470 PINETREE CRESCENT, Mississauga (Mineola)
Vacant Land$2,280,000
$11,176/yr taxListing Courtesy of SAM MCDADI REAL ESTATE INC.
Similar Properties ?Active Comparables — Search CriteriaSearch Radius2 kmPrice Range±5%Match Home TypeYesMatch BedroomsYes
No rental comparables found in this area.
Sold Comparables
Access to sold property data requires a registered and verified account with TRREB DDF integration.
Coming SoonRented Comparables
Access to rented property data requires a registered and verified account with TRREB DDF integration.
Coming SoonBook a Viewing
00 HARMONY ROAD, Oshawa (Pinecrest), Ontario, L1K2B3
